¡Comience a construir su sueño!
Bono Ordinario
Es un beneficio proporcionado por el estado, dirigido a personas de bajos recursos que poseen un terreno propio y desean construir una vivienda. Este bono cubre la totalidad de la construcción, facilitando así el acceso a una vivienda digna.
El presupuesto del bono otorgado por el BANHVI para el año 2025 es de ₡ 9.300.000 aproximadamente.
Construcción en lote propio
Contáctanos por WhatsApp y comience a construir su sueño
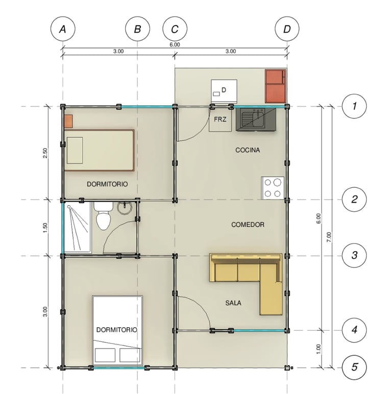
Diseño Rubí


Distribución interna
Área de 48m2 - Sala - Cocina - 2 dormitorios - 1 Baño - Área de lavado
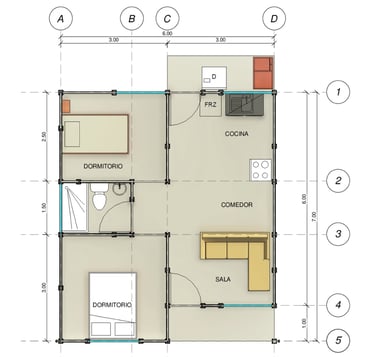
Diseño Vanguardista


Distribución interna
Área de 45m2 - Sala - Cocina - 2 dormitorios - 1 Baño - Área de lavado
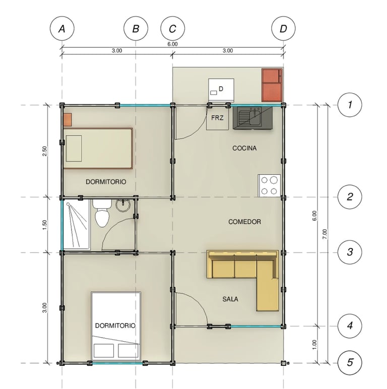
Diseño Diamante




Distribución interna
Área de 45m2 - Sala - Cocina - 2 dormitorios - 1 Baño - Área de lavado
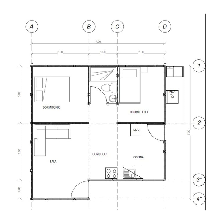
Diseño Zafiro




Distribución interna
Área de 48m2 - Sala - Cocina - 2 dormitorios - 1 Baño - Área de lavado
Diseño Ambar




Distribución interna
Área de 49m2 - Sala - Cocina - 2 dormitorios - 1 Baño - Área de lavado
Requisitos
Contar con lote propio
1
2
Tener núcleo familiar
3
No haber recibido el bono anteriormente
Contar con escritura o plano catastro a su nombre
Núcleo típico
Madre soltera, padre soltero, casados, Unión libre
Núcleo atípico
Abuela - Nieto, Tío Sobrino, hermanos +18
El derecho al bono de la vivienda se puede tramitar solo una vez en la vida




